一人暮らしの祖母と4人家族が同居する古民家再生
TDYリモデルスマイル作品コンテスト2020
ブロック別部門「中国地区」 優秀賞
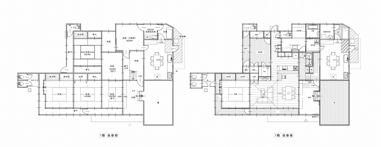
増築された北側の日当たりの悪い台所と食堂廻りで、
お祖母様一人の生活がまかなわれていました。
和室の続き間などのある日当たりの良い場所はまるで利用されていない状態でした。
お祖母様の生活スペースは今回の工事では手を加えず
工事中の生活仮設空間として生かしました。
リモデル後は日当たりの良い場所を食堂やダイニングとし
家族全員が気持ちよく過ごせるスペースになりました。
天井も剥がして梁を見せた傾斜天井としています。
お祖母様の部屋はLDKのそばに配置し、いつでも家族の気配が感じることができます。
家事動線を台所、洗面脱衣室、ユーティリティなどを中心にまとめ、
回遊性のある使いやすい間取りになっています。
急勾配の階段が危険で使用されていなかった二階は、
階段を架け替えることで主寝室と子供部屋として利用できるようにしました。
DATA
- 建設地
- 広島市安芸区



