古民家の断熱改修
築60年以上は経過していると思われる古民家でした。
二世帯住宅で
子世帯は二十数年前に結婚時に納屋部分を改装されて生活されていました。
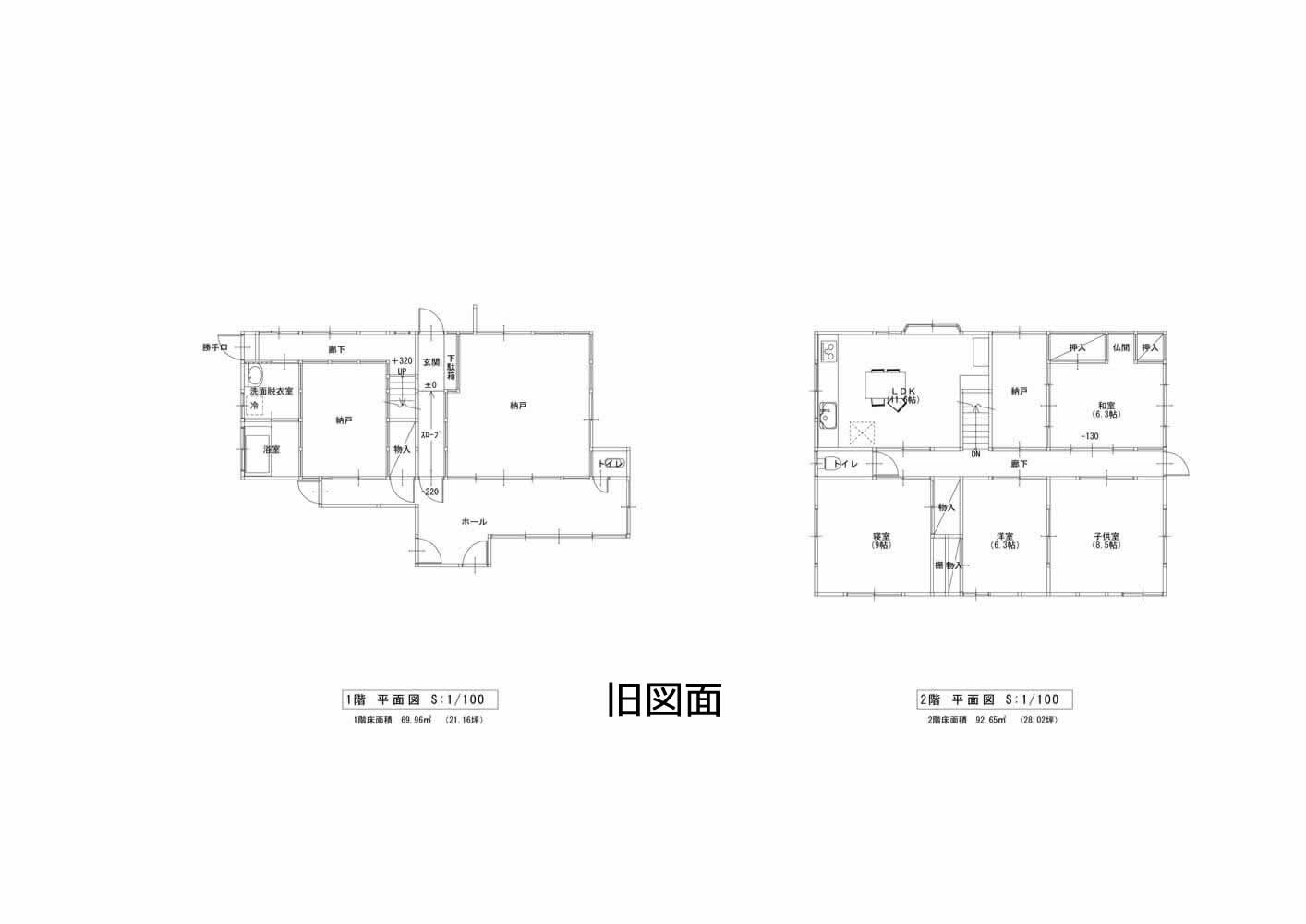
母屋との取り合いなどの関係で、床の高低差が三段階あり、
暮らしに不便を感じておられました。
施主様はそれらの問題の解消は困難と思い込まれ、
当初は増築を希望されていましたが、
段差解消できるプランを提示し納屋の全面改装になりました。
古民家なので
真壁造りを活かした和風のリノベーションを求めておられると思っていましたが、
それは幼少期から住み飽きたと言われ、洋風デザインを希望されました。
大壁に改装する分、断熱施工はし易く断熱性能の高いリフォームが完成しました。
引き渡し後、零下の極寒日に断熱性能を体感に訪問したところ、
40畳程度の大きな空間で
エアコン2台の内1台のみを22℃の設定温度で運転されていましたが、
とても快適な温かさを確保できていました。
DATA
- 建設地
- 広島市佐伯区三宅



