江戸時代末期の古民家を再生
TDYリモデルスマイル作品コンテスト2015 自由空間部門 審査員奨励賞
ひろしま住まいづくりコンクール2015優秀賞
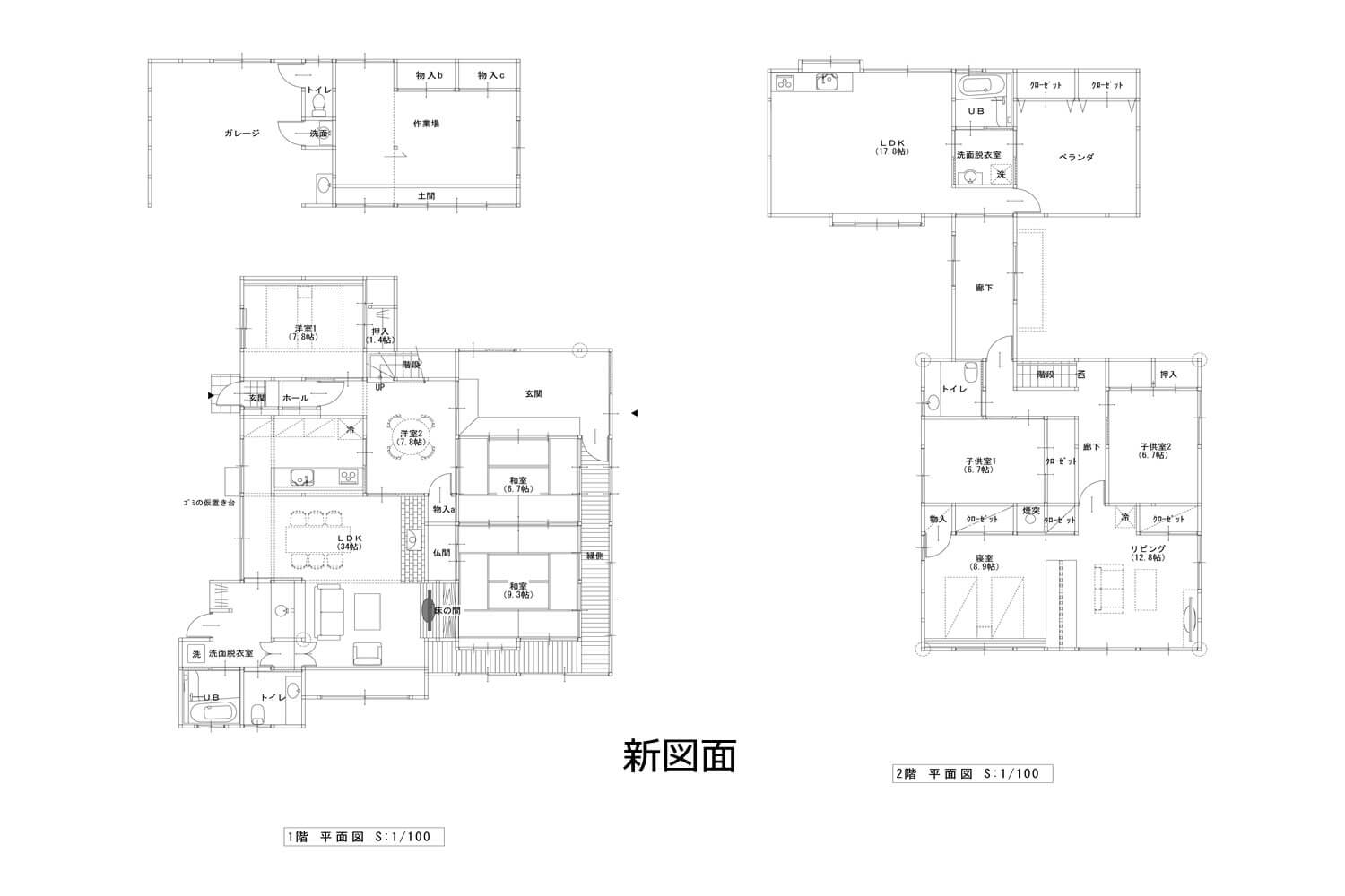
結婚を機にご両親と同居のための二世帯リフォーム。
築150年を超える古民家は色んな部位に痛みが散見されました。
広いLDK空間は薪ストーブ一台で十分暖房を賄っています。
キッチン収納の他、ダイニングテーブルも設計制作しています。
1階下屋根は腐食が激しく全て撤去し作り替えています。
桔木という造作と隅木の反りなどは技術のある大工でないと携われません。
キッチン前のモザイクタイルや、
洗面所の竹を用いた建築化照明の造作は手作り感を強調しています。
2階の若夫婦の主寝室は、奥様の要望で洋のテーストと明るさを表現しました。
DATA
- 建設地
- 広島市佐伯区



